増改築工事
施工後

- 施工地
- 高岡市 M邸
- 竣工年月
- H18.6
- 参考工事価格
- ¥17,745,000(税込)
- 主要施工仕様
-
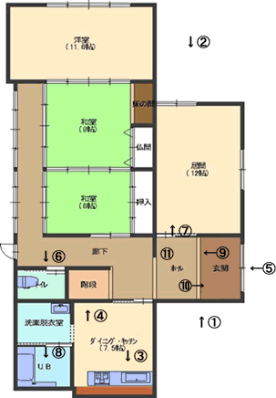
- 台所取り壊し 台所、UB、洗面所、に内部改装
- 便所内部改装
- 玄関、和室取り壊し 玄関、居間増築
- 外部モルタル部分 塗装ぬりかえ
- 屋根 瓦葺き替え
- 外構 アスファルト舗装 約200㎡
施工主コメント
以前は物置スペースとしてしか使っていなかったのに、居間ができて家族が集まれる。
来客時は玄関横なのですぐにお通しができるのでとても満足しています。
設計施工のポイント











施工前








