大規模な増改築工事から住宅設備機器の修繕、室内建具の張り替えまで、あらゆる建築工事にお答えします。

 
TOP > 施工例 > B18-1

改装工事

施工後

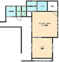
施工後平面図写真

施工地
高岡市 T邸
竣工年月
H18.6
参考工事価格
¥7,350,000(税込)
主要施工仕様
  • 1階居間内装やりかえ
  • 1階DK内装やりかえ、間仕切り解体
  • 浴室タイル→UB1.25坪タイプ
  • 洗面所改装
  • 物干し場 増設
  • 2階洋間8帖、6帖 内装(床壁改装)
  • 2階和室8帖AB 壁ビニールクロス 襖やりかえ
  • 外部アプローチ インターロッキング
  • 玄関ポーチ部 みかげ石乱張り
  • 納屋 瓦屋根やりかえ
  • 施工主コメント

  • 明るくきれいになった
  • お風呂が広くなった
  • 玄関がとてもよくなり、スロープも滑りにくく素敵になった
  • 設計施工のポイント

  • 居間及びDKを広く明るくしたい
  • 家族数減にあわせつかいやすくしたい
  • 床暖房にして快適にしたい
  • アプローチが滑りにくくきれいにしたい
  • 施工後写真01施工後写真02施工後写真03施工後写真01施工後写真04施工後写真05

    施工前

    施工前平面図写真施工前写真01施工前写真02施工前写真03施工前写真04

     
    ページ上部へ